达沃斯学校更新|把旧建筑“包裹”成一座低碳新校园

达沃斯学校更新|把旧建筑“包裹”成一座低碳新校园

达沃斯学校更新|把旧建筑“包裹”成一座低碳新校园

(点击图片下载原图)

▍达沃斯学校的改造

位于达沃斯广场的学校综合体正将其运营模式转换为白天制,并需要增加用于集会厅、餐厅、行政办公室及更多教室的空间。原1960年代建筑因此计划拆除,以建设全新的“生态”建筑。为保留存储的灰色能量,提出了一种与现有建筑整合的方案,即在旧结构的长侧面进行延伸,并在其上加建一层,以满足不断增长的功能需求。

新的建筑因此被设置于整个现有结构之上,并以全新的外壳将其完全包裹,这不仅满足了热工要求,也确立了一种新的美学标准。从外部看,这种混合体显得像是一座新建筑,而实际上其中40%的体量来源于现有结构。

延伸部分采用了高效的木质格栅结构,其构造基于现有建筑的墙轴线。在现有屋顶上加建的第三层通过侧向延伸部分承担,这样就不会给原有结构增加额外的负荷。

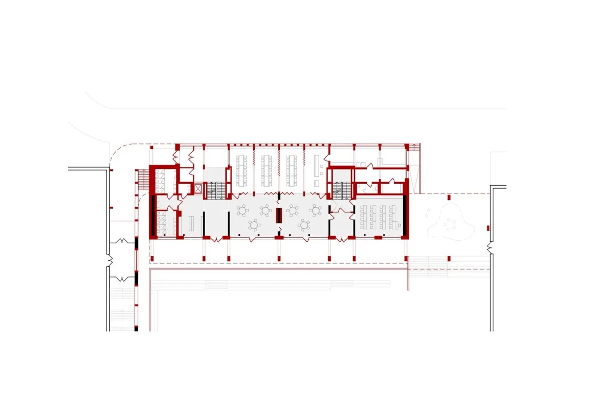
公共的首层朝向有顶的操场,而上层的教室和办公室则围绕中央沟通中庭布置。与多功能走廊区域相结合,这为传统的学校运营带来了丰富多样的个性化学习和休憩空间。朝向“学校街”的新建部分与已有楼梯平台相连接,这意味着新旧建筑各自高出半层。向操场延伸的一侧使得教室可以避开建筑核心,从而在室内形成一个中心的环形走廊,可以在每个夹层上自由地在旧建筑与新建筑之间穿梭。

可持续性理念

当前,建筑行业贡献了所有二氧化碳排放的四分之一,每一座新建筑都面临着实现资源节约施工和节能运营的任务。虽然建于1960年代的现有学校建筑在功能或结构上已不再适用,但在城市规划上位置优越,并且拥有坚固且灵活的结构。因此,保留现有的建筑构件,并利用它们设计延伸项目显得水到渠成。

这意味着新建筑中几乎40%的承重结构和楼梯得以保留,这在资源消耗和二氧化碳排放方面具有显著的影响。

所有新扩建部分均采用木材建造,这使得建筑物能够长期储存二氧化碳。而由于固体的现有结构具有足够的热容量,高效的热量储存对新型轻质结构来说不会构成问题。

对于所有新建部分,重点是一方面使用区域性和可再生的建筑材料。开放的木质结构、大量木质吊顶配以羊毛吸音,以及软木地板共同营造出一种温馨的氛围,并与现有建筑中大块混凝土结构形成对比。因此,对新旧构件进行了有意识的区别,使改造过程对学生来说仍然是可见的。

这种一体化低技术方案使得无需使用机械化控制通风。所有学习和工作区域只需通过同时开启通向室外和中央中庭的窗户,实现自然交叉通风。这个9米高的中庭还可以通向屋顶花园,起到了类似自然烟囱的作用。建筑所需的能量由地热系统和光伏组件提供。


建筑图纸

 

【制作团队】
企划:宛妮
脚本:宛妮
排版:芷仪
校对:Tav
监制:了有和、Beatrice

版权声明:未经授权,不得转发。

内容版权归原作者所有,内容代表作者观点,我们的服务,和 EasyRef 上的所有内容,均按「现状」提供,不提供任何类型的担保,无论是明示还是暗示皆然,内容及品牌是上传所有者的财产,内容均来源于公开信息。

【作者信息】
设计师:CURA Architekten
照片:Daisuke Hirabayashi
*已标注信息来源

在停车场里“行走”的建筑|巴林珍珠小径停车场

在停车场里“行走”的建筑|巴林珍珠小径停车场

巴黎 25㎡阁楼改造|在屋顶之上,为生活留一处静谧

巴黎 25㎡阁楼改造|在屋顶之上,为生活留一处静谧