把威士忌酒厂,做成一座灯塔建筑

把威士忌酒厂,做成一座灯塔建筑

把威士忌酒厂,做成一座灯塔建筑

(点击图片下载原图)



▍格伦莫兰奇酿酒厂

格兰杰酒厂毗邻泰恩镇,坐落在苏格兰北部的山海之间,是高地区历史与传承的重要基石。这座酒厂于1843年创立,2016年,格兰杰公司为其泰恩历史厂区的扩建项目举办竞赛,并委托巴泰勒米·格里尼奥建筑事务所担纲设计。

这家总部位于巴黎、由法国与乌拉圭合伙人主持的事务所于2024年交付了两座工业建筑,成为品牌焕新及其雄心勃勃的发展战略的象征。该项目旨在重塑厂区的形象——这里蕴藏着独特的酿造工艺——同时体现这家著名企业对卓越的不懈追求,并为酒厂打造一座现代化、高性能的建筑。

两个新建筑体量介于传统与现代之间,融入这座拥有近两百年历史的酒厂之中。

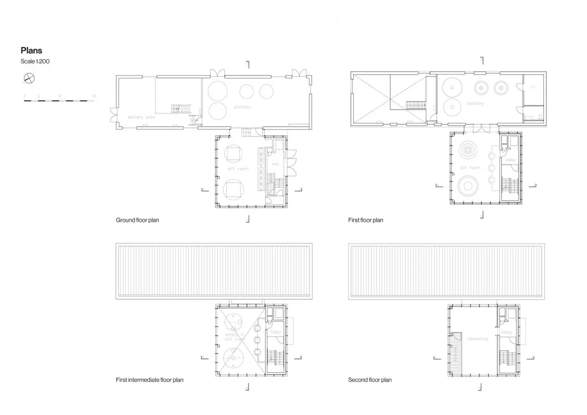
建筑标志性来自两座相互连接的新体量。较高的一座灵感源自曾为多诺赫湾船只指引航向的古老灯塔,彰显出鲜明的现代感。其20米的高度凌驾于整个厂区之上。通透的立方体造型本身便成为一种象征。这座标志性塔楼内安放着两台巨大的蒸馏器,顶层还设有一处集研发与品鉴于一体的实验室,可俯瞰北海的壮丽景色。新空间充分利用自然风光,带来富有灵感的体验。玻璃幕墙透出苏格兰最大的两台蒸馏器。玻璃后方,木质镶板呼应着陈酿威士忌风味的橡木桶。新塔楼的立面融入厂区的历史脉络,并展现出蒸馏工艺极具创新的一面。与此同时,建筑表皮呈现动态而充满活力的特质。白昼之间,“灯塔”折射着变幻的天空,捕捉其光影与明暗,与这片壮丽的景观和谐共鸣。

另一座较低的附属建筑不存在外露的技术装置或机械设备。它低调地与现有仓库融为一体,采用当地石材与石板作为传统覆层。扩建部分由蒸馏过程中直接产生的沼气供能。在这里,酿酒师可以尽情挥洒创意,尝试大胆的配方。

“灯塔”的建造细节精心考究,被构想为一座充满灵感的高科技实验室,既呼应又致敬了这片土地非凡的工匠传统,成为这家展望未来的苏格兰威士忌企业的象征。



建筑图纸

 

【制作团队】
企划:宛妮
脚本:宛妮
排版:芷仪
校对:Tav
监制:了有和、Beatrice

版权声明:未经授权,不得转发。

内容版权归原作者所有,内容代表作者观点,我们的服务和 EasyRef 上的所有内容,均按「现状」提供。


【作者信息】
设计师:Barthélémy Griño Architectes
照片:Hélène Binet

*已标注信息来源。

不是盖博物馆,而是在山里造座花园

不是盖博物馆,而是在山里造座花园

在巴黎旧建筑里,长出一个时尚学院

在巴黎旧建筑里,长出一个时尚学院