在海边,把建筑做得很慢|Casa Caimán

在海边,把建筑做得很慢|Casa Caimán

在海边,把建筑做得很慢|Casa Caimán

(点击图片下载原图)


▍Casa Caimán

Casa Caimán 是位于墨西哥瓦哈卡海岸的一个综合体中的三座住宅和十五座别墅之一。该综合体坐落在海洋和泻湖之间,多个建筑作品延伸至景观中,包括住宅、别墅、海滩俱乐部和餐厅。每座建筑通过雕塑般的几何形态与景观建立对话,采用了带有色素的混凝土墙、平台、棕榈屋顶和tzalám木栅屏等建筑语言。该项目灵感来源于这一海岸地区的民间建筑。

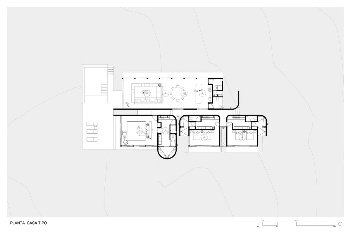
每座住宅由一个中央轴线组成,两侧由两面混凝土墙夹持,作为连接两个翼区的过渡空间:一侧是公共空间,另一侧则是私人空间。各个房间通过tzalám木栅屏与外界相连,既能调节所需的隐私等级,又不妥协于空气流通。

这些住宅建在不同高度的平台上,突出了景观的水平特征。所使用的材料简洁、有限且耐久:带色混凝土、tzalám木材、构成棕榈屋顶的棕榈叶和意大利大理石。

建筑与环境之间的关系不仅体现在建筑设计上,还体现在材料的选择上。带色混凝土不仅耐用,而且能以独特的方式反射光线,随着一天中不同时间和太阳位置的变化,创造出不同的视觉效果。这种光影的互动增强了场地的自然美感,将每个空间转变为一种感官体验。

除了美学方面,Casa Caimán还在设计时考虑了可持续性和能效。建筑中采用的被动技术利用交叉通风来维持室内凉爽环境,减少对空调系统的需求。同时,棕榈屋顶和木栅屏起到了天然过滤器的作用,既允许光线和新鲜空气进入,又能抵挡过多的热量和直射阳光。



建筑图纸

 

【制作团队】
企划:宛妮
脚本:宛妮
排版:芷仪
校对:Tav
监制:了有和、Beatrice

版权声明:未经授权,不得转发。

内容版权归原作者所有,内容代表作者观点,我们的服务,和 EasyRef 上的所有内容,均按「现状」提供,不提供任何类型的担保,无论是明示还是暗示皆然,内容及品牌是上传所有者的财产,内容均来源于公开信息。

【作者信息】
设计师:Bloqe arquitectura
照片:Rafael Gamo
*已标注信息来源。

40年没人动,它反而更完整|葡萄牙乡村修复

40年没人动,它反而更完整|葡萄牙乡村修复

把车库做成建筑|超大跨度的工业美学

把车库做成建筑|超大跨度的工业美学