像港口起重机一样的学校|把结构变成建筑语言

像港口起重机一样的学校|把结构变成建筑语言

港口起重机一样的学校|把结构变成建筑语言

(点击图片下载原图)


▍普罗维登斯高中

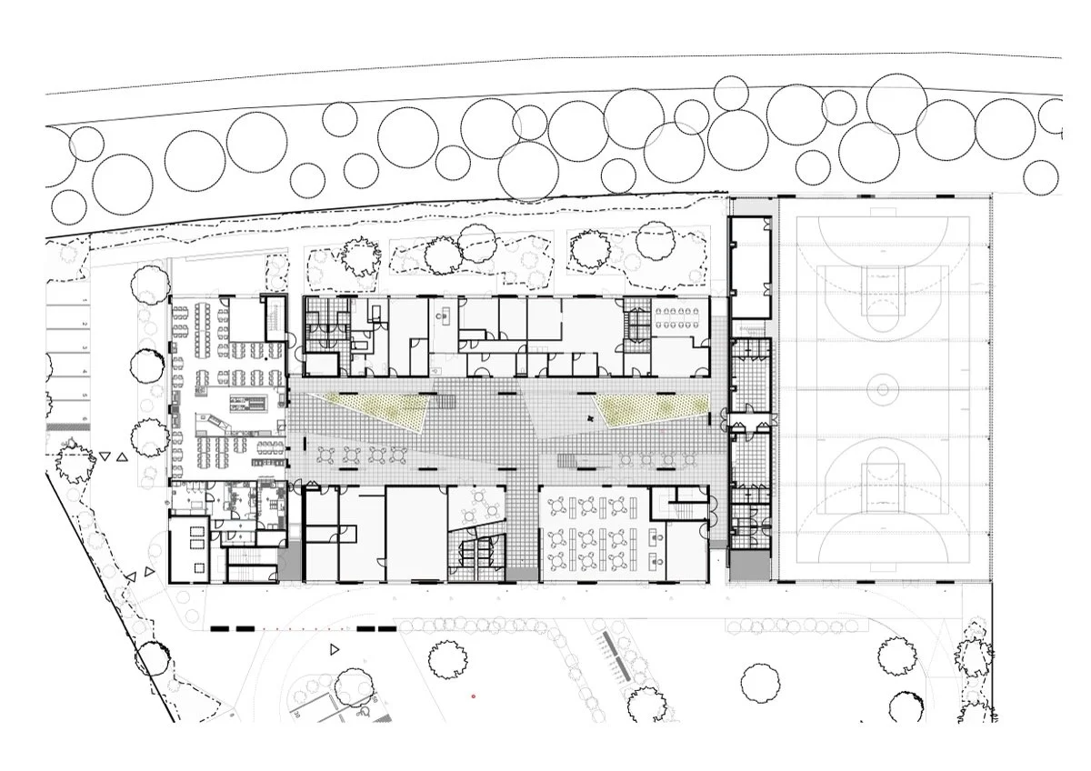
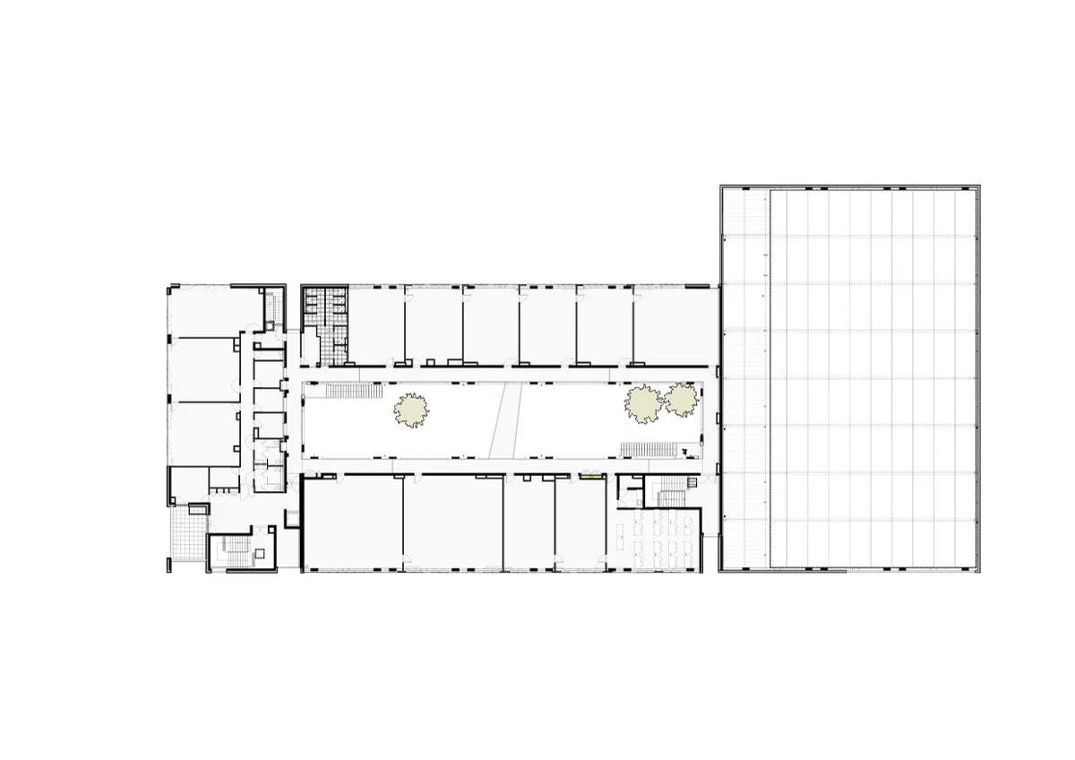
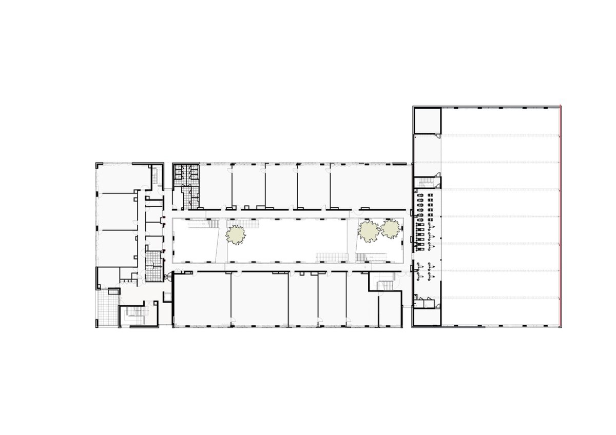
该项目位于拉克鲁瓦德西勒街,是一所教育机构,分为三个部分:一个高等教育预备机构,包含6个班级,可容纳150名学生,底层设有自助餐厅;一所高中,包含10个班级,配备技术和行政设施,可容纳350名学生;以及一个体育馆。这三个部分分布在两层楼上,共同构成一个单一建筑,围绕着一个由玻璃屋顶覆盖的中庭。这个中心空间是对“母院”(位于城内的主机构)玻璃覆盖门厅的呼应——那是一个真正的聚会场所,一个充满欢乐的地方,一切活动都在那里发生。

该项目体现了马洛特色的标志性设计风格:由于这是一所部分专注于施工技术的“职业”高中,两个建筑元素被突出强调:两根承载着所有楼层和建筑立面的大梁。W形结构再现了港口起重机的形象;锯齿形玻璃屋顶与圣马洛港周边建筑可见的建筑特征保持一致。

中庭通过走廊和步道连接起整个功能布局。它起到缓冲空间的作用,能够调节建筑内的气候环境(冬季提供日照,夏季实现降温和自然通风)。信息与指导中心、行政办公室、学校生活场所、体育馆和自助餐厅都集中在底层;上面两层则集中了教室以及与职业高中专业方向相关的不同区域/工作室。

体育馆是专为高中及整个聚集区服务的空间,底层设有多功能运动场(篮球、手球、排球、羽毛球等),楼上设有举重室和攀岩墙。其建筑延续了W形结构主题,使建筑体量得以悬挑,并实现了运动场朝向外部完全通透的视野。

设计重点放在了材料的质量和耐久性上。在追求精致风格的过程中,我们力求限制颜色和材料的多样性。因此,单一的白色使得空间中充满活力和动态的元素得以凸显:自然光、树木和植物,但最重要的是学生本身。

该项目充分利用了林荫大道旁现存的各种树木,不将其视为空间限制,而是作为揭示景观特征的元素,使得项目与“校园”区的未来发展之间能够进行平衡的对话。



建筑图纸

 

【制作团队】
企划:宛妮
脚本:宛妮
排版:芷仪
校对:Tav
监制:了有和、Beatrice

版权声明:未经授权,不得转发。

内容版权归原作者所有,内容代表作者观点,我们的服务,和 EasyRef 上的所有内容,均按「现状」提供,不提供任何类型的担保,无论是明示还是暗示皆然,内容及品牌是上传所有者的财产,内容均来源于公开信息。

【作者信息】
设计师:ALTA architectes - urbanistes
照片:Charly Broyez
*已标注信息来源。

在城市里画一个圆|把公共空间重新打开

在城市里画一个圆|把公共空间重新打开

把旧舞台拆了重建|一座围着火跳舞的建筑

把旧舞台拆了重建|一座围着火跳舞的建筑