像花园一样的学校|法国 Les Violettes 校园设计

像花园一样的学校|法国 Les Violettes 校园设计

像花园一样的学校|法国 Les Violettes 校园设计

(点击图片下载原图)

▍紫罗兰学校集团

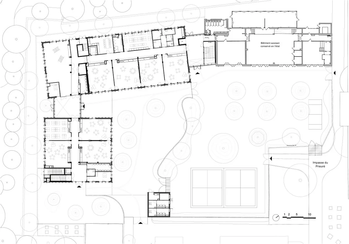
巴黎机构 HEMAA(Charles Hesters 与 Pierre Martin-Saint-Etienne)于2024年11月完成了由市政府委托的 Les Violettes 学校综合体项目,地点位于法国 Mareil-Marly。该项目包括16间教室,其中包含一所全新的幼儿园、为小学扩建的6间教室以及一座娱乐中心。建筑面积为2,000平方米,总投资预算为710万欧元。

Les Violettes 学校综合体就像位于 Mareil-Marly 村庄中的一个小村落。该项目坐落在城镇的高地上,周边种满了许多值得注意的树木,并能欣赏到巴黎大都市区西侧的开阔视野,远处甚至可见拉德芳斯的塔楼。现有建筑因不同时期的建筑风格各异而相互掩映于树木与绿地之间,为孩子们提供了得天独厚的学习环境。

HEMAA 设计了一个花园学校,通过保留并提升这一自然环境的优势来营造氛围。建筑选用木材和玻璃作为主要材料,映照出树木的枝叶,而空间布局则强调建筑体量之间的透明性以及对天空的开放感。

为了最大限度地利用遮挡主导风向的户外游乐场空间,两栋新建筑被设置在场地的西角。新建筑体量与现有小学建筑之间通过两个明亮的空隙联通,这两个空隙形成了双层挑高的通道:第一个空隙位于与现有建筑的交界处,作为小学大厅;第二个空隙则兼顾幼儿园大厅与有顶游乐区,为室内街道引入充足的自然光。

幼儿园全部设在底层,所有教室均可直接通向庭院——这是教学人员的一个重要要求。在新旧庭院中,现有树木周围的开放地带也得到了扩展。雨水被引导进入这些略微凹陷的区域,以促进自然渗透。

富有诗意与意蕴的材质感

选用轻质、预制的法国木结构,不仅减少了施工过程中的噪音和工期,也使在学校社区仍在使用的场地上施工对使用影响降到最低。设计上突出展示了结构碎片化的特点,底层和上层采用了截然不同的处理方式。

底层为孩子们提供了视觉上的锚点,构成了一个广泛向庭院开放的基础。其外覆采用工厂处理过的垂直木质百叶板,这些板材选自法国道格拉斯冷杉,并经过预先老化的灰色处理,以确保外观在长时间内保持稳定。上层则包裹以反光的镜面铝板,并点缀有玻璃窗户。立面反射出树叶、天空和远处的景观,使建筑的外观和色彩随季节和天气不断变化。柔和弧形且紧绷的屋顶仿佛悬浮于庭院之上。

内部则优先采用原始材料。整个建筑中均展示出木质框架,而支撑建筑结构的预制混凝土墙体则保持原始状态。声学方面通过在结构横梁之间铺设压实的天然木纤维来进行调节,保温则选用了木羊毛。各类配套系统均以外露且整洁的方式加以整合。

建筑紧凑的设计以最大化游乐场空间为优先考虑,因此设置了中央走廊,使两侧的教室可以均衡分布。为了让这些空间自然采光,沿着分隔教室与走廊的墙体均镶嵌了窗户。这些流通空间的尽头也都采用了玻璃幕墙,确保每个区域都能一览户外及周围绿化。


建筑图纸

 

【制作团队】
企划:宛妮
脚本:宛妮
排版:芷仪
校对:Tav
监制:了有和、Beatrice

版权声明:未经授权,不得转发。

内容版权归原作者所有,内容代表作者观点,我们的服务,和 EasyRef 上的所有内容,均按「现状」提供,不提供任何类型的担保,无论是明示还是暗示皆然,内容及品牌是上传所有者的财产,内容均来源于公开信息。

【作者信息】
设计师:HEMAA 和 Hesters Oyon Architectes
照片:Sergio Grazia 和 Nicolas da Silva Lucas
*已标注信息来源

废弃办公楼的重生|巴黎 Forum 27 共生基础设施

废弃办公楼的重生|巴黎 Forum 27 共生基础设施

漂浮在茶山上的亭子|杭州茶山浮亭

漂浮在茶山上的亭子|杭州茶山浮亭