不是地标,而是「城市的客厅」:博尔索尼剧院如何重塑一条街

不是地标,而是「城市的客厅」:博尔索尼剧院如何重塑一条街

不是地标,而是“城市的客厅”:博尔索尼剧院如何重塑一条街

(点击图片下载原图)

▍博尔索尼剧院

这座新建的剧院是 "超越街道" 米兰大街整体改造项目的核心元素。该计划旨在转变该区域的工业风貌,使剧院成为这个正在经历重大振兴、并受益于众多提升项目的区域内的一个地标性建筑。

建筑从街道线后退,形成了一个铺设花岗岩的 "市民教堂广场",并在其东侧毗邻现有居民区的地方,设置了一个林荫广场。该广场的特色是通风烟囱和南侧覆有镜面效果的设备间体量。重新定义周边的公共空间,对于提升区域价值而言,与建筑本身同等重要。

剧院被设计为 "市民建筑",扮演着文化凝聚器的角色。建筑主体是一个平行六面体体量,由大型粗面混凝土构成,并在面向米兰大街的北立面上,向内雕琢出一个铝制凉廊,主入口就设于此。这面巨大的墙体完全由 4x1.25 米的预制大型粗面混凝土砌块系统构成。连续的玻璃幕墙将门厅与广场在视觉上连接起来,强调了剧院对城市的开放姿态。

建筑体量在舞台层向上延伸形成舞台塔,其长边立面覆盖着半透明的聚碳酸酯板,当内部灯光亮起时,在夜晚会散发光芒。剧院作为一个包容的都市空间,设有服务于不同年龄层的房间、公共活动区、一个可通往新广场的酒吧门厅,以及一个连接着化妆室和道具间的大型观众厅。

室内材料包括用于声学墙板的木材,与大厅的深灰色石膏和树脂地板形成对比。公共空间采用了浅灰色、木材和铝材的组合,后者用于楼梯、栏杆和接待台,赋予空间独特的个性。一条 "橙色路径" 从门厅延伸至儿童活动室,标志着这个特殊区域。

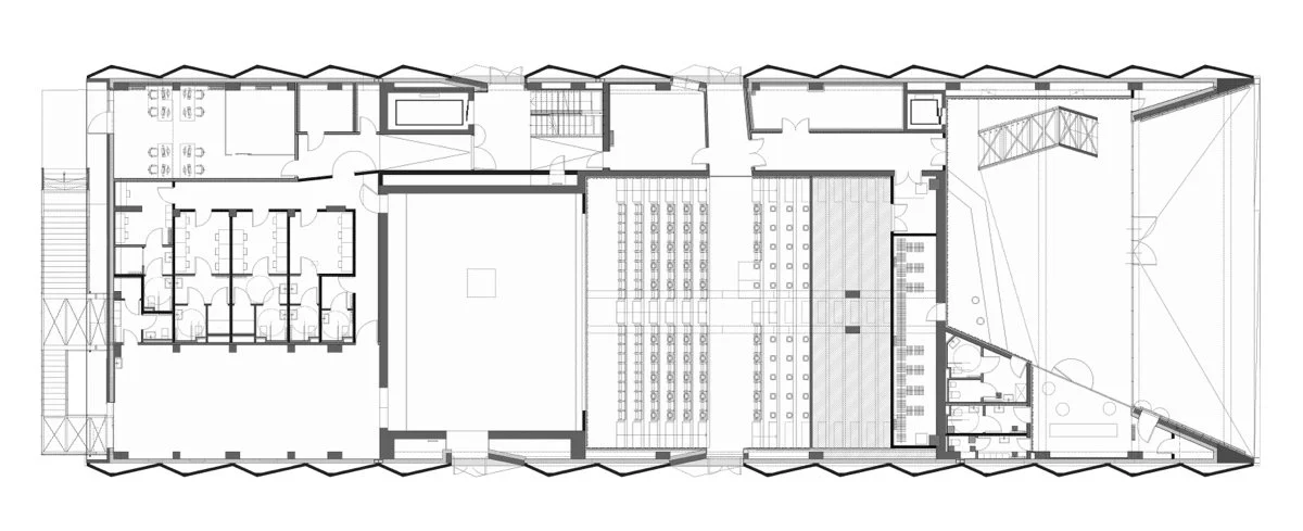
剧院包含两个演出厅,均可从一楼进入。主观众厅设有312个座位,拥有三条走道——一条中央走道和两条侧走道——与紧急出口相连。其木制墙壁由LED灯带照亮,结合天花板的设计,确保了最佳的音响效果。抬高的木制舞台下方设有空腔,增强了声音的共鸣。

儿童观众厅则设有169个座位。其木地板无缝延伸至舞台区域,形成了一个非正式的座位区,并且该厅没有舞台塔,体现了其更简洁、更亲切的设计理念。

这座剧院是为城市而建、融于城市的建筑——它是一个催化剂,旨在振兴这片拥有丰富工业历史的区域,将其转变为一座代表当今及未来世代文化与社会复兴的灯塔。


建筑图纸

 

【制作团队】
企划:了有和
脚本:林晨
排版:了有和
校对:Tav、林晨
监制:了有和、Beatrice

版权声明:未经授权,不得转发。

内容版权归原作者所有,内容代表作者观点,我们的服务,和 EasyRef 上的所有内容,均按「现状」提供,不提供任何类型的担保,无论是明示还是暗示皆然,内容及品牌是上传所有者的财产,内容均来源于公开信息。

【作者信息】
设计师:ARW Associates 和 Brescia infrastrutture
照片:Federico Covre
*已标注信息来源

一座“围着中庭生长”的校园|谢尔商学院空间原型解析

一座“围着中庭生长”的校园|谢尔商学院空间原型解析