一座“围着中庭生长”的校园|谢尔商学院空间原型解析

一座“围着中庭生长”的校园|谢尔商学院空间原型解析

一座“围着中庭生长”的校园|谢尔商学院空间原型解析

(点击图片下载原图)

▍商学院与通识教育

新的商学院与通识教育学院位于CFF铁路轨道以南,与交通基础设施一起标志着锡埃尔市在铁轨之外的发展。继应用科学大学社会工作学院后,贝勒维平原现又多了一座教育设施。该场地具有两个参照层次:第一层向北通向CFF火车站,向西通向蒙德雷什路;第二层向南和向东面向贝勒维平原。学校的选址横跨斜坡折点,使得不同专业得以明确区分。学校设有两个入口:一个位于公交车站层面,另一个位于连接城市北部与CFF火车站的人行天桥处。体育馆的入口则设在较低层面。

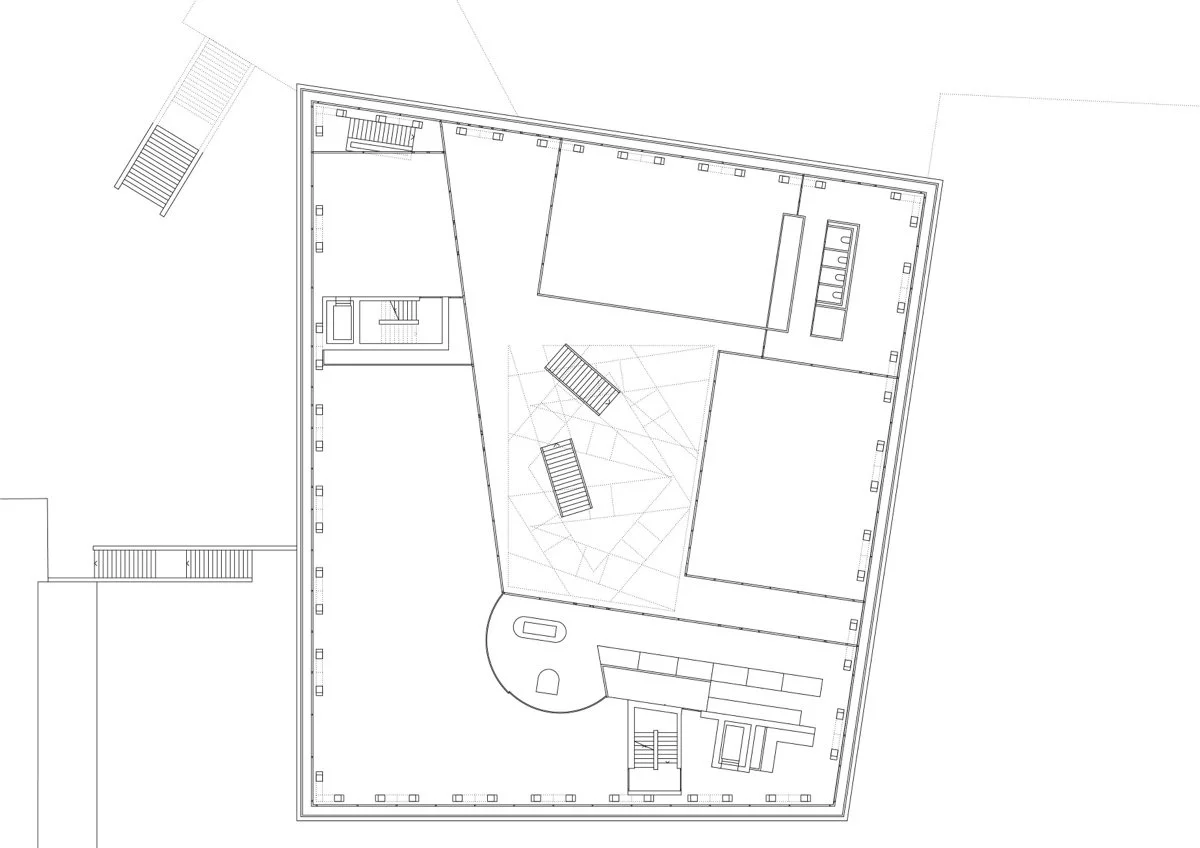
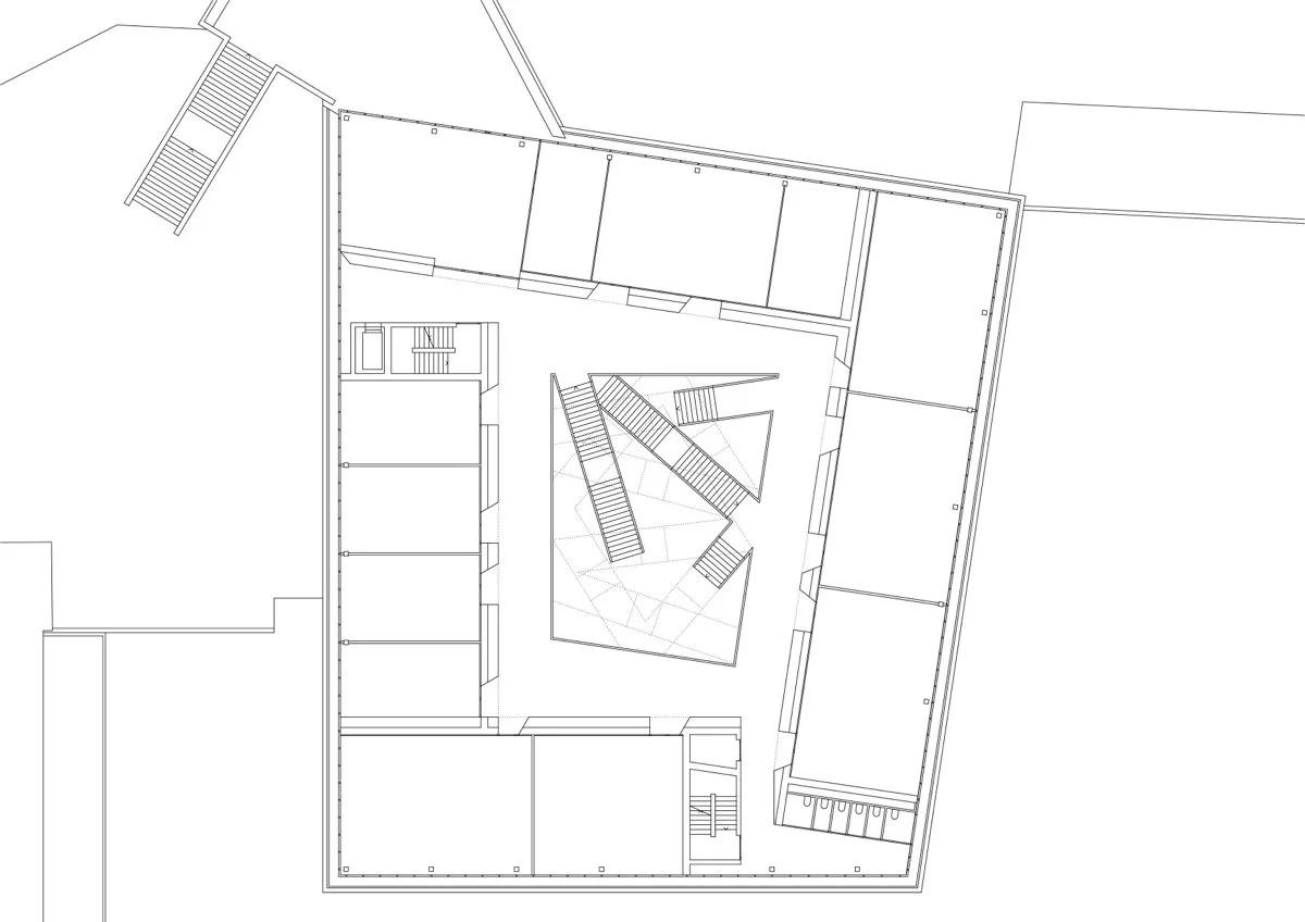
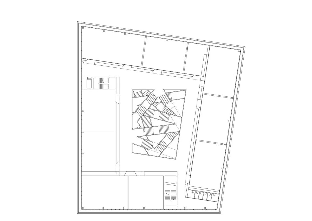
学校的设计提供了一种与其承载的教育层次要求和特点相契合的类型学。由阳台式走廊服务的一排教室俯瞰着宽敞而充满光线的中央空间。这个由楼梯间穿插营造而充满活力的中央空间成为了学校的参照和标识性空间。环绕中央空间排列的教室具有多样的朝向和采光条件。

一楼设有公共设施,包括餐厅以及与HES-SO共享的两个礼堂,后者也占据了上层。混凝土结构解决了在双层体育馆上方叠加学习项目的挑战,四面大墙的承重通过外围传递,从而形成了确保抗震稳定性的V形结构。玻璃幕墙上饰有抛光不锈钢镜面折叠包层作为护栏,揭示了结构本体。室内材料简洁:裸露的混凝土、透明或着色玻璃以及铝制包层构件。

建筑图纸

 

【制作团队】
企划:了有和
脚本:林晨
排版:了有和
校对:Tav、林晨
监制:了有和、Beatrice

版权声明:未经授权,不得转发。

内容版权归原作者所有,内容代表作者观点,我们的服务,和 EasyRef 上的所有内容,均按「现状」提供,不提供任何类型的担保,无论是明示还是暗示皆然,内容及品牌是上传所有者的财产,内容均来源于公开信息。

【作者信息】
设计师:邦纳德·沃夫瑞(Bonnard Woeffray architectes)
照片: Roland Halbe 和 Nicolas Sedlatchek
*已标注信息来源

不是地标,而是「城市的客厅」:博尔索尼剧院如何重塑一条街

不是地标,而是「城市的客厅」:博尔索尼剧院如何重塑一条街

昆虫的尺度,建筑的诗意|蒙特利尔新昆虫馆的自然融合设计

昆虫的尺度,建筑的诗意|蒙特利尔新昆虫馆的自然融合设计