在花园中生活:C2 House 的空间扩散与中庭日常

在花园中生活:C2 House 的空间扩散与中庭日常

在花园中生活:C2 House 的空间扩散与中庭日常

▍C2 House

(点击图片下载原图)

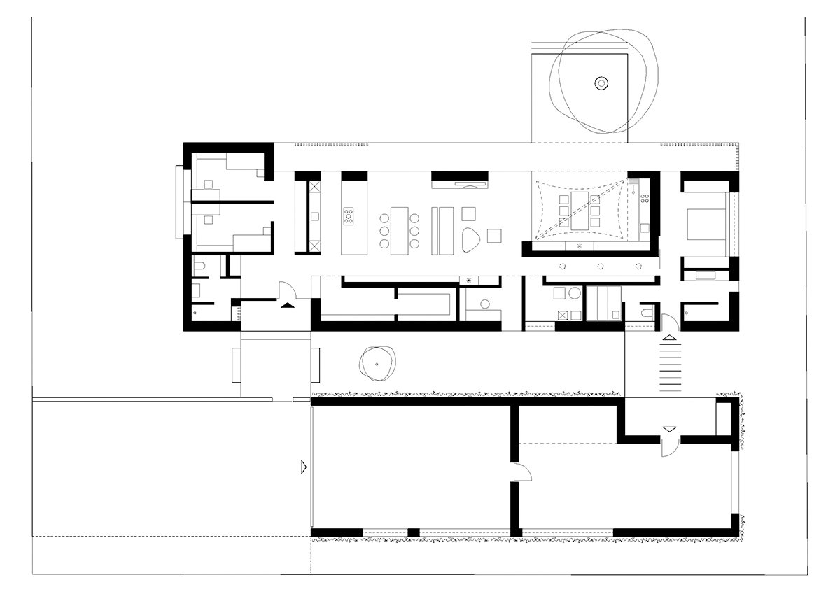
C2 House 代表了一个家庭,他们生活在一个安静的绿色社区中,这些人喜欢整年在户外度过业余时间。 主要思想是房屋和花园中空间的扩散。 带壁炉和夏季厨房的中庭成为家庭生活的核心。

建筑图纸

 

【制作团队】
企划:了有和
脚本:林晨
排版:了有和
翻译:了有和
校对:Tav、林晨
监制:了有和、Beatrice

版权声明:未经授权,不得转发。

内容版权归原作者所有,内容代表作者观点,我们的服务,和 EasyRef 上的所有内容,均按「现状」提供,不提供任何类型的担保,无论是明示还是暗示皆然,内容及品牌是上传所有者的财产,内容均来源于公开信息。

【设计公司】
ARCHITEKTI mikulaj & mikulajová


*已标注信息来源

倒置桁架:叶晋发商号的历史空间再生

倒置桁架:叶晋发商号的历史空间再生

大地上的「智慧之山」:大邱大圣比瑟尔图书馆设计概念

大地上的「智慧之山」:大邱大圣比瑟尔图书馆设计概念