倒置桁架:叶晋发商号的历史空间再生

倒置桁架:叶晋发商号的历史空间再生

倒置桁架:叶晋发商号的历史空间再生

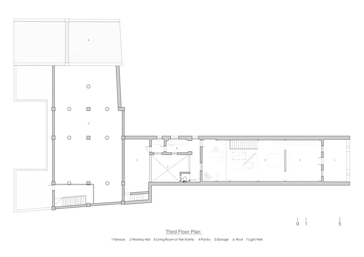
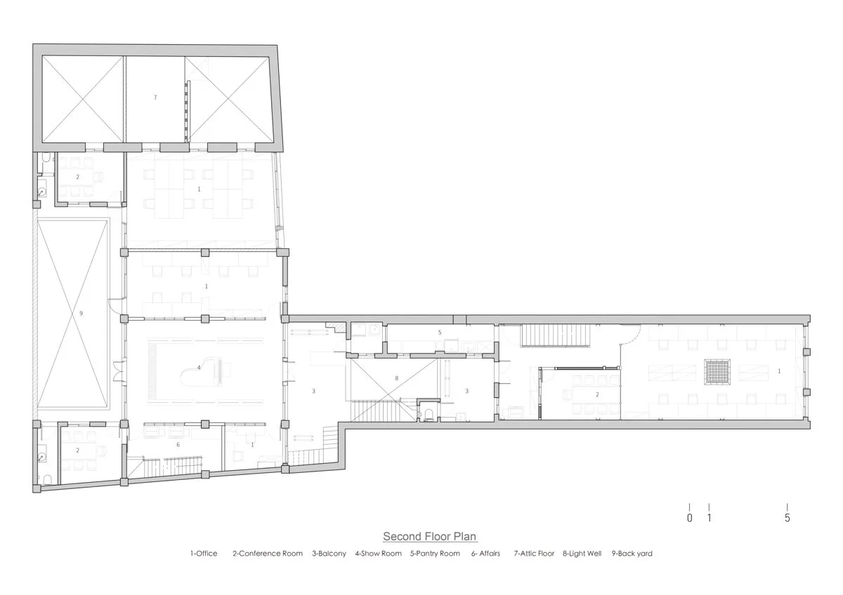
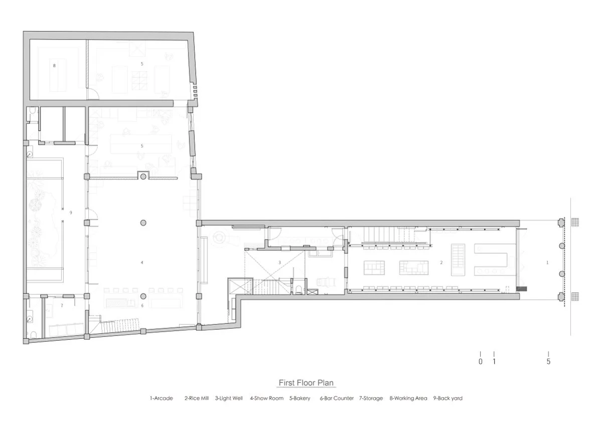
▍叶晋发商号米粮桁

(点击图片下载原图)

这座历史建筑具有许多强烈的空间和生活特征,表达了特定时代的重要性。在面对历史建筑的翻新时,我们的首要意图是“重新确定”空间的初始姿态,以便保留时间痕迹的条件,使人们能够体验到历史的痕迹。因此,谨慎而又显著地插入新元素来塑造新空间成为这个项目的关键问题。

结构作为家具

最大限度地利用历史空间和重新使用原始材料是我们设计的主要概念。前厅零售店的主要木梁引入了“结构作为家具”的概念,这是一个独立的自由站立组件,与现有墙壁分离。在这个项目中,采用最少的介入和较少的锚固,以避免削弱现有建筑。

木梁的设计是为了支撑展示架并集成照明和空调设备的布线。这个倒置框架的概念是对老建筑的一种谦逊回应。

叶家是台北市迪化街的众多粮仓之一,当时迪化街是台北的中心商业区。我们保留了大量现有的家具和粮食设备,将其重新放置回空间,以展示历史背景的存在感。用于木梁的木材是当时用来制作粮食器具的日本柳杉。除了形式上的温和显性响应外,材料和纹理的内在连接也是我们对历史建筑的设计思考。


 

【制作团队】
企划:了有和
脚本:林晨
排版:了有和
翻译:了有和
校对:Tav、林晨
监制:了有和、Beatrice

版权声明:未经授权,不得转发。

内容版权归原作者所有,内容代表作者观点,我们的服务,和 EasyRef 上的所有内容,均按「现状」提供,不提供任何类型的担保,无论是明示还是暗示皆然,内容及品牌是上传所有者的财产,内容均来源于公开信息。

【设计公司】
本埠設計


*已标注信息来源

街角重生:CORNER 42 住宅项目

街角重生:CORNER 42 住宅项目

在花园中生活:C2 House 的空间扩散与中庭日常

在花园中生活:C2 House 的空间扩散与中庭日常