轻与重之间|巴斯克球解读中心的“当代堡垒”想象

轻与重之间|巴斯克球解读中心的“当代堡垒”想象

轻与重之间|巴斯克球解读中心的“当代堡垒”想象

▍巴斯克球解读中心

(点击图片下载原图)

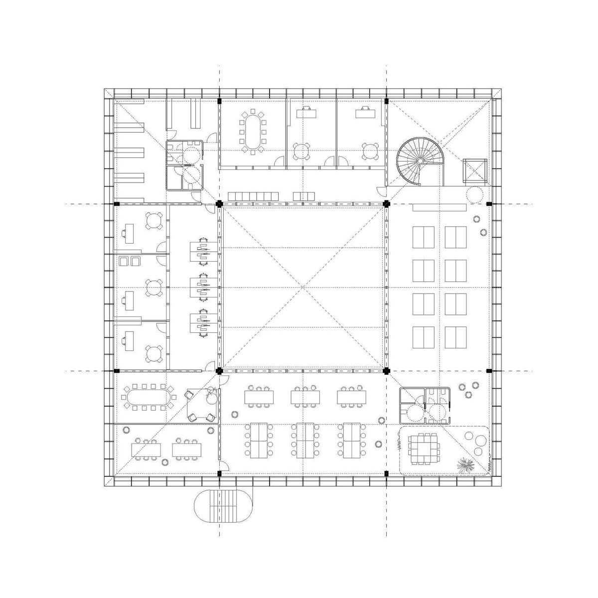
巴斯克球解读中心 是 MACH 为潘普洛纳市政府于2024年提交的提案。该中心位于西班牙潘普洛纳的一个公园环境中,建筑规模中等,建筑面积为1500平方米,预算为500万欧元,单平方米造价为3333欧元。主要材料包括玻璃和金属。项目探讨了中庭、网格、纺织品和透明度等概念。

该提案设想了一个紧凑的建筑,形似堡垒,同时融入了一种轻盈和短暂的特性,旨在创建一个作为动态中心的基础设施,能够承办从展览和工作坊到社区活动和体育活动等多种活动。建筑的内部围绕一个关键的中央元素组织:一个双层高的中庭,作为空间的核心,建立了中心不同区域之间的视觉和功能联系。建筑的平面图呈十字形布局,分为九个象限,便于清晰和高效的项目分配。在设计过程中,一个关键的决策是采用工业化和轻量化的结构。这种建筑方法允许使用点基础,最小化对地面的干预,并尽可能保留现场可能发现的任何考古遗迹。此外,建筑通过实施双层气候外立面重新诠释了历史建筑厚墙的截面。这一外壳作为一种被动系统,有助于全年保持热舒适度。

【设计公司】
MACH


*已标注信息来源


▍妳正在阅读的是 EasyRef 案例库中的一个精选案例,更多相关项目正在网站中持续更新。查看完整案例集:EasyRef 灵感行星

 

【制作团队】
企划:了有和
脚本:林晨
排版:了有和
翻译:了有和
校对:Tav、林晨
监制:了有和、Beatrice

版权声明:未经授权,不得转发。

内容版权归原作者所有,内容代表作者观点,我们的服务,和 EasyRef 上的所有内容,均按「现状」提供,不提供任何类型的担保,无论是明示还是暗示皆然,内容及品牌是上传所有者的财产,内容均来源于公开信息。

昆虫的尺度,建筑的诗意|蒙特利尔新昆虫馆的自然融合设计

昆虫的尺度,建筑的诗意|蒙特利尔新昆虫馆的自然融合设计

街角重生:CORNER 42 住宅项目

街角重生:CORNER 42 住宅项目