尤卡伊幼儿中心重生|建筑承载儿童成长

尤卡伊幼儿中心重生|建筑承载儿童成长

尤卡伊幼儿中心重生|建筑承载儿童成长

(点击图片下载原图)


▍尤卡伊幼儿早期发展与早期刺激中心

本项目为国家采购监管局 “OSCE” 发起的一项倡议,选址于库斯科大区乌鲁班巴省的尤卡伊区,海拔2858米。国家计划建造一座主要为儿童及孕期母亲提供娱乐和物理治疗服务的建筑。然而,该功能规划并未考虑到儿童成长的其他方面,而这些方面对于在生命最初几年巩固儿童的全面发展至关重要。这暴露了国家采购监管局 “OSCE” 的提案在提供满足幼儿早期发展需求的高质量服务方面,存在着专业层面的不足。在此背景下,本文档深入探究了构成幼儿早期发展的各个要素,以及围绕该建筑提案的相关情境因素。


如同安第斯地区的前西班牙社会,人类与领土之间的关系对于理解其定居形式至关重要。乌鲁班巴河流域满足了人口、休闲、农业及水能利用的需求。由于现有城区选址不当,洪水风险成为共同问题。此外,该项目针对的最脆弱群体,即孕妇及五岁以下婴幼儿,其贫血与营养不良的比率居高不下,这使得国家采购监管局(OSCE)的计划内容备受质疑。

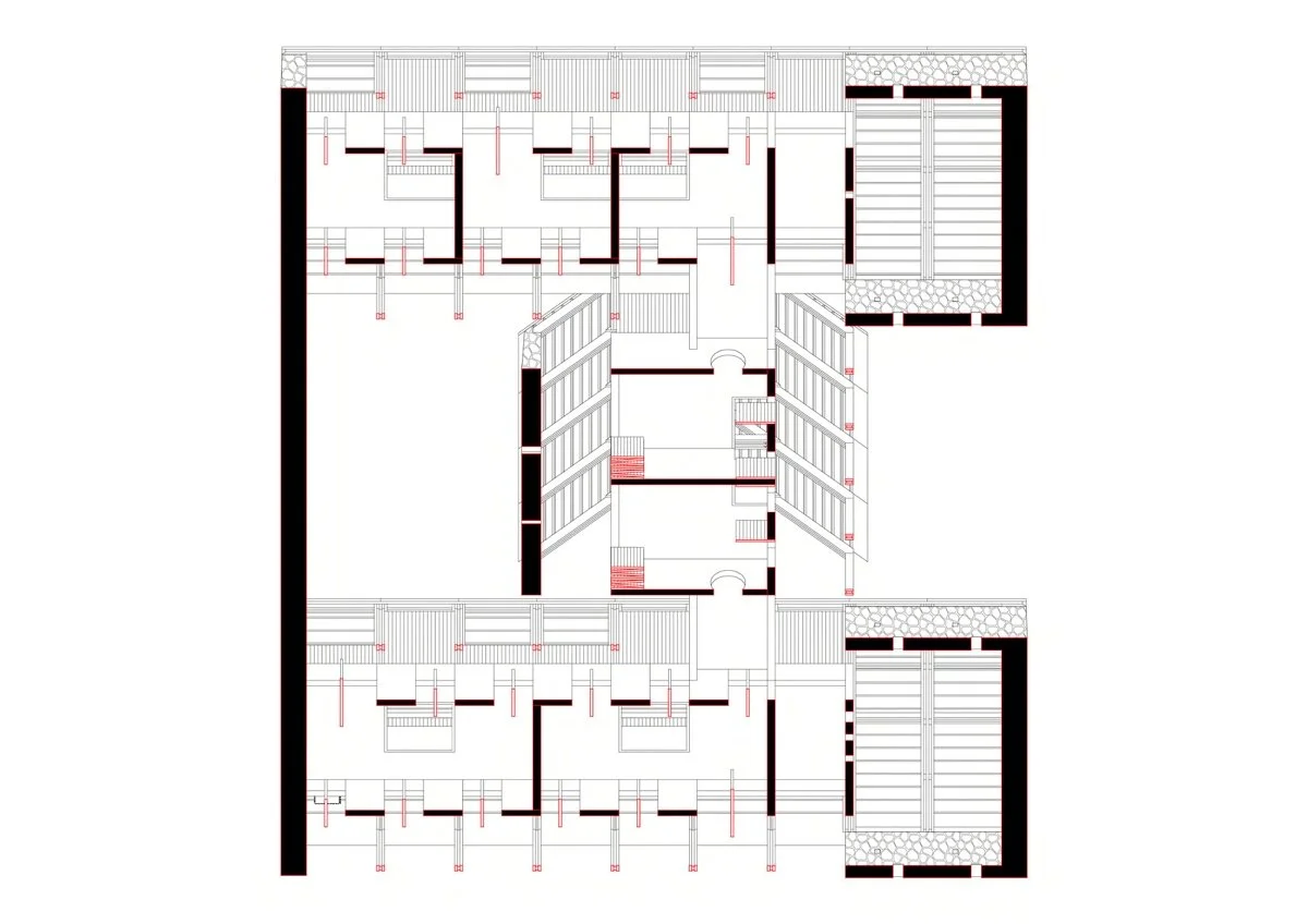
印加圣谷的前西班牙建筑遗迹揭示了多种建筑类型的存在。印加建筑的特点在于其施工层面的设计标准及其类型学的应用。在此方面,印加建筑拥有一些基本单元,这些单元构成了特定的建筑「类型」,例如「Kancha」(坎查)。「这种矩形围墙内汇集了用于居住或其他用途的单空间建筑群的街区概念,在印加人中广为流传……」(Gasparini 1977, p. 186)。

在印加帝国及其先前文化的扩张过程中,坎查(kanchas)围绕着中间空间呈现出不同的配置,同时保持相同的建筑语言作为统治的象征。「毫无疑问,印加建筑存在着惊人的形式统一性;其许多元素确实被标准化,且解决方案在整个帝国内被重复使用。……印加建筑师是修改标准化建筑形式以适应各地形特殊性的专家,并且他们毫不犹豫地发明和创造新的设计」(Protzen, 2014, 346)。

坎查(kanchas)的其他例子可归属于瓦里文化(Wari)。在这一类建筑中,道路作为连接不同单元(具备多种用途的坎查)的重要性尤为突出。这一点同样体现在同一文化的纺织品中,其上呈现的图案与其建筑的逻辑相契合。此外,寺庙是前西班牙建筑的另一个突出面向,例如拉奇(Raqchi)神庙。这座建筑的特点在于重复使用结构元素,形成空间序列,并且可以在结构元素之间构成网格,从而定义出新的空间关系。

对建筑计划与空间进行碎片化处理,这个想法源自于先前对坎查(kanchas)的研究。此一建筑探索方法的特点在于对空间的碎片化处理以及中间空间的创造,从而挑战传统惯例。在碎片化过程中,一个显著的关注点是:创造一个统一性空间对于建立各空间之间的关系至关重要。这使得能够将建筑计划整合于单一建筑物中,同时产生中间空间,通过引入虚体、庭院及过渡区域,旨在流畅地连接室内空间。

从孕期到生命最初五年的幼儿早期发展投资,是一个国家最具效益的社会投资。原因在于:正如幼儿发展法所确立的七项指导原则所证明,整体社会的发展与繁荣基础正是在生命最初几年奠定。一个人的潜力发展能力也在生命早期被决定。因此,幼儿发展轨迹与这些涵盖生命最初几年主要需求的指导原则之间存在着密切关联。


作为意志的建筑

建筑史始终围绕着建筑物运转。建筑物,作为被建造之物,一直是提出理解世界之方式的工具。

本设计课程认识到,当下建筑物正陷入危机,因为它被视为针对一系列地域、历史、地缘政治、环境等问题的"明确答案"。建筑师们已经发展出一种策略性的论证能力,用以将这些对于建筑而言处于外围却重要的问题,通过演绎推导,沉淀至一个"显而易见"的结论:即在特定地点建造一座建筑物是"解决"问题的工具。建筑物最终成为被识别出的、甚至更糟——是被制造出的——某个原因的结果。

然而,我们国家充斥着深刻不平等的现实,以及这片土地上压倒性的异质性,都要求社会生产基础设施。在拉丁美洲及其他"全球南方"地区的现实中,建造是一种伦理责任。

本设计课程恰恰定位于这一交汇之处,即前述悖论——建筑物的必要性与过时性——所创造的机遇之中。立足于建筑学,我们有责任也有义务始终重新思考建筑物。它未来将呈现的、作为变革意志的形态,正是建筑师的责任。无论采取何种形式,建筑物都是建筑师的意志。

本课程倡导一种去中心化的视角来看待建筑设计项目,初期将其理解为碎片化的、偶然的、主观的且明晰的。通过这种方式,旨在利用建筑物所陷入的危机,来重新评估设计项目本身,重新评估如何从建筑学内部、而非朝向建筑学去构建论点。

本学期的结构旨在让学生创作四个建筑片段的试作。每个试作都构建一个建筑学的与情境性的想象图景。此处展示的是由作者们自行策选的部分试作。

 

【制作团队】
企划:宛妮
脚本:宛妮
排版:芷仪
校对:Tav
监制:了有和、Beatrice

版权声明:未经授权,不得转发。

内容版权归原作者所有,内容代表作者观点,我们的服务,和 EasyRef 上的所有内容,均按「现状」提供,不提供任何类型的担保,无论是明示还是暗示皆然,内容及品牌是上传所有者的财产,内容均来源于公开信息。

【作者信息】
设计师:Sebastian Malpartida
指导老师:Patricia Llosa,Rodolfo Cortegana 和 Sebastián Cillóniz
学校:秘鲁罗马天主教大学
*已标注信息来源。

不是建筑而是装置|公共基础设施新想象

不是建筑而是装置|公共基础设施新想象

老茶号重生|用建筑激活一个被遗忘的茶村

老茶号重生|用建筑激活一个被遗忘的茶村