封闭厂房的重生|偏锋画廊光的改造

封闭厂房的重生|偏锋画廊光的改造

封闭厂房的重生|偏锋画廊光的改造

(点击图片下载原图)


▍偏锋新艺术空间

偏锋画廊于2009年在北京798艺术区开业,是中国最早致力于推进抽象艺术研究和发展的大型艺术机构之一。经过十多年的运营,画廊的主人邀请ARCHSTUDIO对空间进行改造,提升其功能,适应未来的发展需求。

PIFO GALLERY 所在的 798 艺术区拥有一组现代艺术空间,这些空间是从 1950 年代建造的电子工厂改造而来的。与艺术区那些以混凝土拱窗为特色的标志性建筑不同,偏锋画廊坐落在一座普通的工业建筑中——一个普通的封闭式混凝土“盒子”,天花板很高,自然采光很差。对于画廊的改造,ARCHSTUDIO的首要考虑是满足其功能需求,同时赋予空间迷人的氛围和独特的视觉识别,从而提升画廊的品牌形象。

ARCHSTUDIO在现有建筑形式和结构的基础上,以“光之漏斗”为设计理念。设计团队将原本封闭的“盒子”打开,引入多层次的自然光,同时重新组织流线、结构和材料,从而创造一个集艺术展示、接待和办公功能为一体的自然、开放、高效的空间。

临街立面增加了两个梯形体量,用作向外打开“盒子”的窗户。一个作为入口门厅,将建筑物与室外街道连接起来,另一个作为凸窗,将日光和街景引入办公区。

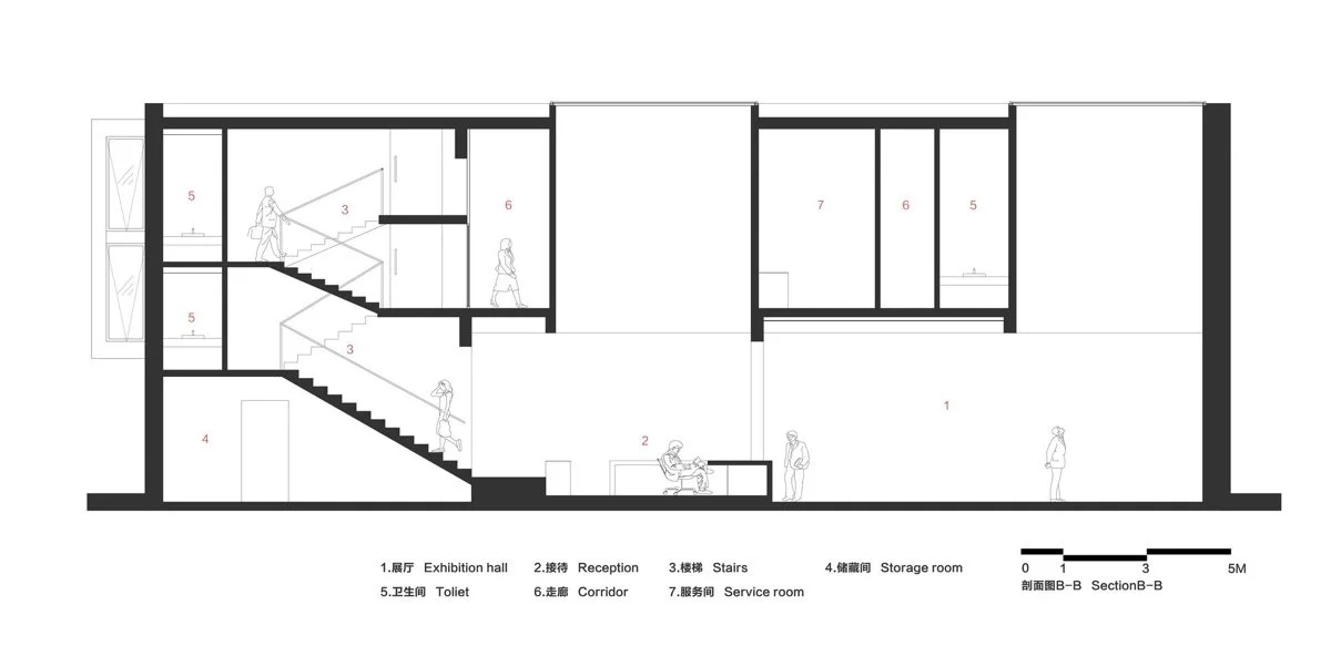
门厅由清水混凝土建造。它的立面由半透明的 U 形玻璃制成,营造出一种朦胧和柔和的光线般的效果,这决定了参观者进入画廊时的第一印象。这座新建筑被类似于旧建筑的红砖包围,以与周围的建筑环境相协调。

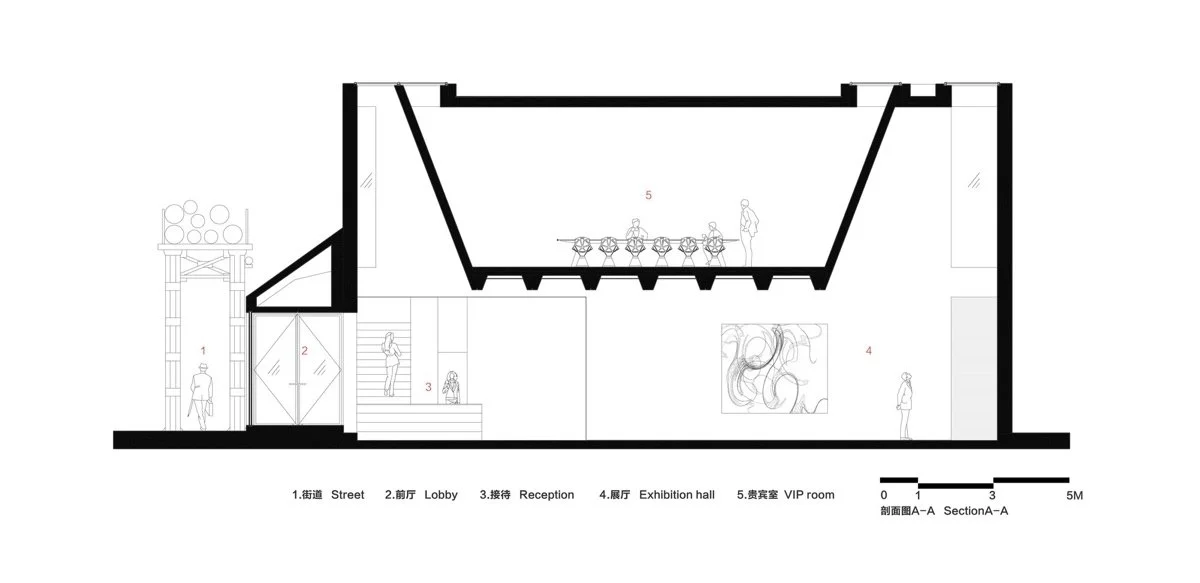
展览空间通过几个梯形采光井引入日光。设计团队拆除了旧建筑的一些现有预制混凝土屋面板,同时增加了线性天窗。

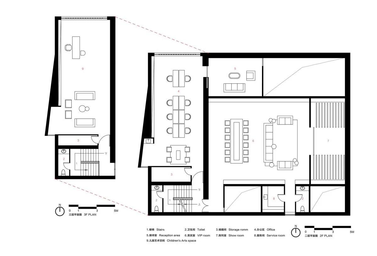
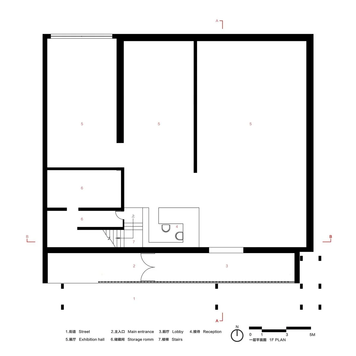
天窗与斜墙相连,形成三个大小不一的梯形采光井,为下方的展厅和接待空间带来柔和的自然光。一楼包括三个独立但相连的展厅。设计团队利用密集的混凝土肋梁,最大限度地提升了室内空间的高度。肋梁截面呈梯形。照明膜插入梁之间,为展览空间增添了柔和的人造光源。

倾斜的墙壁在二楼形成了一个梯形的接待大厅。专为接待VIP艺术品收藏家而设,配备厨房、浴室、休闲和会议设施。日光穿透天窗,洒落在斜墙上,形成独特的仪式性接待空间。

前台区、接待区和办公区的固定家具采用清水混凝土建造。烧结石用作桌面。该设计在家具和空间之间创造了清晰的对话。


建筑图纸


 

【制作团队】
企划:宛妮
脚本:宛妮
排版:芷仪
校对:Tav
监制:了有和、Beatrice

版权声明:未经授权,不得转发。

内容版权归原作者所有,内容代表作者观点,我们的服务,和 EasyRef 上的所有内容,均按「现状」提供,不提供任何类型的担保,无论是明示还是暗示皆然,内容及品牌是上传所有者的财产,内容均来源于公开信息。

【作者信息】
设计师:建筑营设计工作室
照片:Jin Weiqi
*已标注信息来源。

把楼梯做成主角|一个核心改变整栋住宅

把楼梯做成主角|一个核心改变整栋住宅

老龄社会新社区|未来健康与护理服务

老龄社会新社区|未来健康与护理服务