旧工厂 × 新办公|Greenpeace 比利时总部的“刚刚好”改造法则

旧工厂 × 新办公|Greenpeace 比利时总部的“刚刚好”改造法则

旧工厂 × 新办公|Greenpeace 比利时总部的“刚刚好”改造法则

▍Greenpeace Belgium HQ

相关标签

国家和地区:
设计师/公司:
时间:
建筑空间:
建筑类型:

(点击图片下载原图)

比利时绿色和平(Greenpeace Belgium)新总部位于布鲁塞尔市中心一个密集的街区。原有建筑群曾属于一家历史悠久的管风琴制造工坊——布鲁塞尔管风琴制造厂。

为了挖掘这座工厂建筑的独特价值,我们采用了一种“匹配”策略,创造性地规划了新的办公空间。通过分析现有结构、内部空间以及周围环境,并将其与绿色和平团队的具体活动 “从正式会议到攀岩” 进行匹配,我们打造了一个低技术依赖却高质量的工作环境。

节制原则

我们对位于 Vergotedok 的基地进行了深入研究,该区域位于布鲁塞尔快速发展的“运河区”,展现出多元化的城市风貌:前侧是典型的布鲁塞尔排屋,后侧隐藏着一座仓库;面向水面,远处是水泥筒仓;周围既有历史建筑,也有多元文化社区。

为了保留这种多样性的氛围,我们将“节制”作为项目的核心设计原则。

这意味着,我们首先评估现有资源 “包括结构和能源”,然后制定策略,以“刚刚好”的方式满足建筑内不同活动的需求。

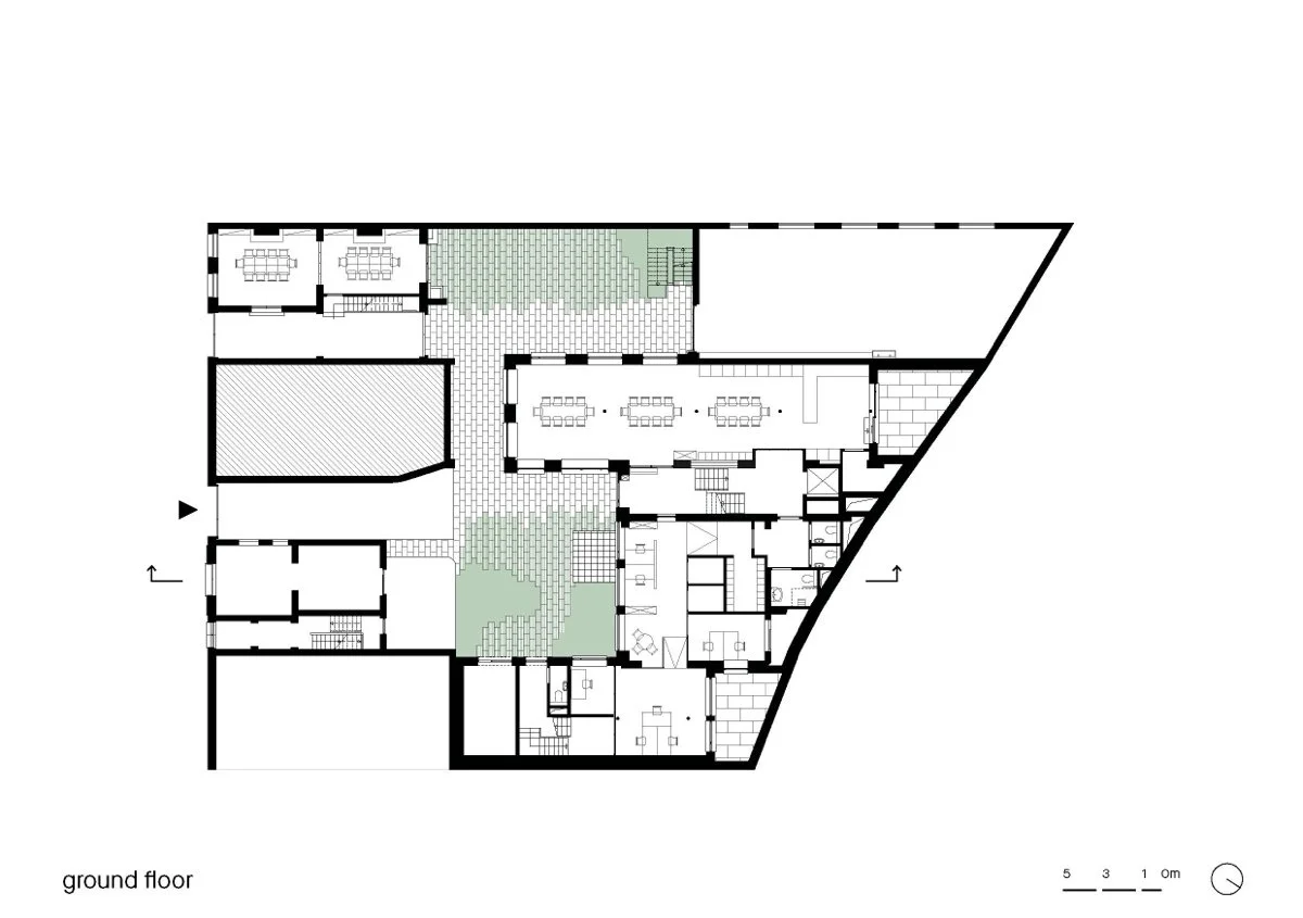
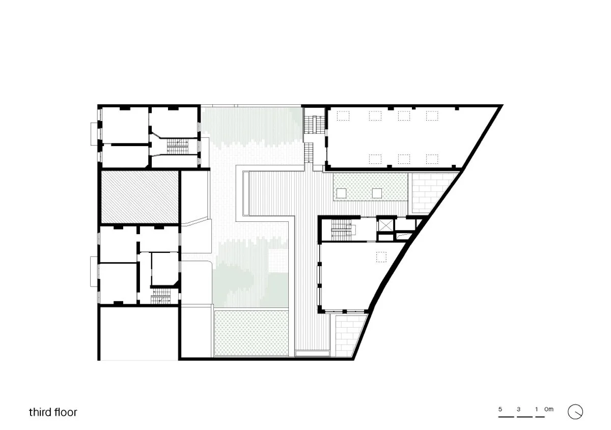
基于活动的空间规划

在设计过程中,我们开展了一系列共创活动,包括在绿色和平旧办公室和奥斯坦德港口的“彩虹勇士号”船上驻扎观察。随后,我们基于活动需求对空间进行了分类,包括:大型会议、小型会议、非正式讨论、专注工作、电话交流、用餐、制作以及攀岩等。

这些空间不仅由绿色和平团队使用,还向本地组织开放,以促进社会互动并增强社区归属感。因此,我们在满足绿色和平需求的同时,也通过活动分区和共享设施管理,优化空间利用,并特别考虑声学隔离,使不同活动能够同时进行,甚至在需要时相互干扰,以激发更多互动与创意。

匹配策略

低环境影响,应带来高建筑价值。

选择保留、改造和再利用建筑,不仅有助于减少建筑碳排放,还让我们能够通过逐步的“拼贴”策略,发掘这座建筑丰富多样的空间可能性。

遵循“匹配”策略,我们将现有结构和能量流与特定活动进行对接。例如,后方的旧管风琴制造工坊被改造为绿色和平的工作坊,而前方的排屋则设为访客住宿空间。而在前后之间,我们精心设计了一系列室内外空间、公私区域以及不同温控环境,为绿色和平这一充满活力、不断变化的组织提供多层次的空间选择。

 

【制作团队】
企划:了有和
脚本:林晨
排版:了有和
翻译:了有和
校对:Tav、林晨
监制:了有和、Beatrice

版权声明:未经授权,不得转发。

内容版权归原作者所有,内容代表作者观点,我们的服务,和 EasyRef 上的所有内容,均按「现状」提供,不提供任何类型的担保,无论是明示还是暗示皆然,内容及品牌是上传所有者的财产,内容均来源于公开信息。

【照片信息】
Stijn Bollaert


*已标注信息来源

乡野木屋改造|85㎡艺术家隐居系度假屋

乡野木屋改造|85㎡艺术家隐居系度假屋

当意式老宅遇上现代设计:顶楼住宅的重生之作

当意式老宅遇上现代设计:顶楼住宅的重生之作