Aarhus Harbor Bath
奥胡斯,丹麦
26,500 平方米
混合功能
2019 年
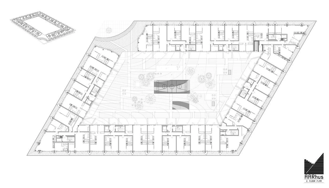
丹麦第二大城市正在重新发现其旧港口。当被要求在一个退役码头上对整个岛屿进行总体规划时,我们发现城市生活已经提前到来。一个由几个容器和一堆沙子制成的海滩酒吧证明了生活不需要建筑物——情况恰恰相反。我们决定颠倒这个过程,在周围的建筑之前设计总体规划的公共空间,所以这些建筑是由它们之前的生活塑造的。一条新的公共长廊将城市与大海连接起来。我们没有礼貌地跟随码头,而是提出了一个脉动的轨迹,定义了一系列陆地和水上的新公共空间:一个海港浴场、一个漂浮的海滩、一个剧院和一系列在公共领域建造为凉亭的浴室。建筑物之间的生活,领先于建筑物本身。我们沿着海滨设计了三个结构。两座带有露台的房屋山峰标志着港口的入口。将长廊从水中延伸到天空的金字形酒店。还有一座钟楼——大本钟的一种住宅形式——被设计成一个独立的细长钟楼,让居民可以住在钟面内。我们经常发现自己无法在老街区创造出我们喜欢的古怪魅力。通过让生命至上,我们在奥胡斯创造了一个城市岛屿,被现实生活的自然副作用所感染。
版权声明:未经授权,不得转发。
所属专题
-
规划是设计公共空间的二维练习。它的词源源于平整飞机的概念。但城市本质上是三维的。 Nolli 地图是罗马的传奇描绘,它没有区分内部和外部,而是区分公共和私人。教堂大厅、市场大厅和市政厅被展示为公共场所,创造了一种公共领域在屋顶下和外墙后面延伸的意识。通过将 Nolli 地图扩展到三维,我们可以将思维从规划扩展到空间,将共享空间从底层运输到 Z 轴上下的目的地。
轴、对角线、视线、门户、门廊和通道的传统规划工具被扩展为包括坡道和屋顶、螺旋和弹簧、地形和平台、壁架和前景。通过加入第三维度,建筑不再是有限地块的零和游戏,而成为上层印刷地产的艺术。天空中的维尔京群岛。
Z 轴从地平线向两个方向延伸。想象一下,三所学校围绕着一块中央层叠的程式化法罗群岛坠落。一条巴黎地铁将天空带到隧道,向戴高乐传奇的 1 号航站楼的复古未来主义致敬。一所学校堆叠和扇形单层建筑,将教育扩展到各个层面的户外活动。一座将高线延伸到天际线的摩天大楼。一堆层叠的绿洲悬浮在塔和绳索之间的半空中。作为城市立面的终极例子,想象一个仓库附近,柱子森林承载着一系列建筑物,形成层层环绕的周边街区。在建筑物之间、下方和上方,一个三维公共领域穿插并相互连接,在 X、Y 和 Z 之间创造新的平等。通过提升我们的建筑物和景观、私人和公共空间、街道和广场,我们正在挤压 Nolli 地图以成为 Nolli 模型,以期我们将在所有三个维度上毫不费力地移动的未来。Planning is a two-dimensional exercise for designing public space. Its etymological roots come from the notion of leveling a plane. But the city is inherently three-dimensional. The Nolli Map is a legendary depiction of Rome that didn't make the traditional distinction between inside and outside, but rather between public and private. Church halls, market halls, and city halls were shown as public, creating an awareness that the public realm extended under roofs and behind façades. By extending the Nolli Map into the third dimension, we can expand our thinking from planning to spacing, transporting shared spaces from the ground floor to destinations up and down the Z-axis.
The traditional planning tools of axis, diagonals, sight lines, portals, porticos, and passages are extended to include ramps and rooftops, spirals and springs, topographies and platforms, ledges and outlooks. By adding the third dimension, architecture ceases to be a zero-sum game of limited ground, and becomes the art of printing real estate in the upper strata. Virgin islands in the sky.
The Z-axis extends in both directions from the horizon. Imagine three schools wrapped around a central cascading piece of stylized Faroese fell. A Parisian Metro bringing the sky to the tunnel in an homage to the retrofuturism of Charles De Gaulle's legendary Terminal 1. A school stacking and fanning single-story buildings to expand education to the outdoors on all levels. A skyscraper that continues the High Line into the skyline. A stack of cascading oases suspended midair between tower and guy ropes. As the ultimate example of urban elevation, imagine a neighborhood of warehouses, where a forest of columns carries a series of buildings, forming layers of perimeter blocks hovering above. In between, under, and above the buildings, a three-dimensional public realm is interspersed and interconnected, creating a new equality between X, Y, and Z. By lifting our buildings and landscapes, private and public spaces, streets and squares, we are extruding the Nolli Map to become a Nolli Model, in anticipation of a future when we will move effortlesslv in all three dimensions.

