贝伦开放织网:社区连接的功能性植入

贝伦开放织网:社区连接的功能性植入

贝伦开放织网:社区连接的功能性植入

相关标签

地区:
学校:
年级:
时间:
学科:
建筑类型:

(点击图片下载原图)

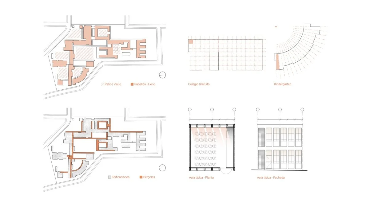
贝伦圣心学校被视为二十世纪规划建设的重要教育机构之一。作为兼具教育与宗教功能的场所,其选址于利马大都会区圣伊西德罗区一个不规则的街区内,呈现出独特而有序的空间布局。与市内其他学校及大学类似,该建筑群通过封闭式围墙与周边环境隔绝,切断了与城市生活的联系。

由此催生了"贝伦开放织网"项目构想——作为延续现有设计理念的城市基础设施单元,以更具开放性、渗透性的姿态融入社区环境。新增功能将作为原校区课外活动的补充,使整个建筑群能够突破标准课程时间限制,在课内外时段均可实现社会共享。


该课程提出一个场景,即毕业设计项目与档案馆资料合作展开。新项目源于具有重要价值的秘鲁建筑史建筑师文献资料,我们相信这将丰富项目思考并拓展学生的知识视野。

课程建议从建筑建成前的文件资料入手开展研究,查阅保存在秘鲁天主教大学建筑档案馆及其他原始资料中的草图、平面图、照片和文本。旨在理解项目产生的背景、其特殊性以及在作者作品体系中的角色。

基于文献梳理,将对比分析建筑现状,认识建筑项目的价值,并构建批判性叙事以启动项目研究。

对原始方案的解读将通过图纸和图像呈现,对其变更的阐释及毕业设计方案将分为三个层次进行,分别用黑色、红色和蓝色表示。这三个层次能实现原始状况、现状变更与未来规划的同时解读。

新项目作为设计假设而运作,通过对基础作品及其随时间推移产生的改变进行转化,开启新的可能性。该假设立足于干预场地提出改造构想,既吸收原始方案及其档案资料的启示,也考量场地现实环境与景观特征。

基于档案材料衍生的设计项目要求学生厘解决策制定过程,并掌握能推动干预改造实施的表达技术与建造技艺。

 

【制作团队】
企划:了有和
脚本:林晨
排版:了有和
校对:Tav、林晨
监制:了有和、Beatrice

版权声明:未经授权,不得转发。

内容版权归原作者所有,内容代表作者观点,我们的服务,和 EasyRef 上的所有内容,均按「现状」提供,不提供任何类型的担保,无论是明示还是暗示皆然,内容及品牌是上传所有者的财产,内容均来源于公开信息。

【作者信息】
设计师:David Torres
指导老师:Asiel Nuñez,Cristian Yarasca,Jorge Sanchez,Michelle Llona 和 Rafael Zamora
*已标注信息来源

多维坊巷|把西安网格织进养老社区

多维坊巷|把西安网格织进养老社区

構架下的心聚.離

構架下的心聚.離