从市场到社区空中廊道:利马北部“照护型街区”的建筑实验

从市场到社区空中廊道:利马北部“照护型街区”的建筑实验

街区市场守护者

相关标签

地区:
学校:
年级:
时间:
学科:
建筑类型:

(点击图片下载原图)

街区市场守护者

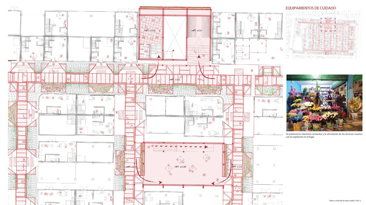
利马北部生产者市场社区的新型空中街道系统与配套设施

「街区市场守护者」提案是通过一项参与式进程形成的,参与者包括利马北部生产者市场的母亲、儿童和管理者。在过去的43年中,每位业主都在商铺之上建造了自己的家园;这种功能混合性催生了一个每周7天、每天24小时都有人活动的空间,这里生活和工作着一个由1200至2000名居民或商业用户组成的社区,其中80%是妇女和儿童。他们面临着空间不足以及因缺乏技术援助建造的建筑物所带来的安全隐患。基于此,提案提出了一套门廊系统,通过其可复制性生成一个新的空中街道系统,提供安全的疏散通道。该街道网络为住宅提供了新的入口和中间空间,促进了家庭活动动态,同时也连接了新的照护设施和入口节点,使得城市能够在市场之上实现连续性,从而达成市场与街区之间更和谐的共处与生活质量。


PFC1设计工作室提供了一个讨论框架和支持体系,其核心理念是:建筑是改善人们生活质量的一种手段,并将建筑学的潜在领域从家具尺度延伸到地域尺度。

普适的可持续性与具体的适宜性将作为筛选最佳项目构想的标准。

本工作室通过设计项目提供分析和反思的工具,旨在:多尺度地理解问题及其可能的改进方案;将问题与提案理解为过程或一系列过程;考虑项目在其生命周期内所面临的各种时间性和场景,无论是周期性的还是偶发性的;追求解决方案的多功能性,力求以同一项干预措施解决多个问题,从而提高可用资源的效率,并使空间使用灵活化,以适应多种开放用途;以景观化的方式切入项目,使干预措施融入更广泛的领域并与之相互关联;设想分阶段实施的提案,将其作为建设过程以及社会和生态过程 “例如所用材料或劳动力的来源”的一部分。

在整个过程中,我们鼓励与其他学科的专业人士进行互动和对话,以便对构成现实的各类过程形成更精确的认识。同样,与研究地点内的不同居民和行动者进行接触和交谈,对于融入更多现实性和复杂性也至关重要。

通过这些提案,我们力求应对城市问题在其人为-自然环境中带来的挑战,试图平衡各种张力,并促进生态和社会进程。不同尺度的公共空间,通常作为调和这些力量的机遇空间出现,它促进共居、共情、相互认同——无论存在于人类之间、非人类生命体之间,还是人与景观之间。

 

【制作团队】
企划:了有和
脚本:林晨
排版:了有和
校对:Tav、林晨
监制:了有和、Beatrice

版权声明:未经授权,不得转发。

内容版权归原作者所有,内容代表作者观点,我们的服务,和 EasyRef 上的所有内容,均按「现状」提供,不提供任何类型的担保,无论是明示还是暗示皆然,内容及品牌是上传所有者的财产,内容均来源于公开信息。

【作者信息】
设计师:ZARITA GIANNI POLO RONCAL
指导老师:Augusto Román,César Tarazona 和 Susana López
*已标注信息来源

構架下的心聚.離

構架下的心聚.離

三团演义:少城风云曲

三团演义:少城风云曲